Klicken Sie auf das CAD-KAS Logo, um zur Startseite zu gelangen
Software  |  Kategorien  |  Warenkorb  |  Infos

Finden Sie doch einfach die Software, die Sie suchen - über 200 von uns erstellte Programme wie z.B. der CAD-KAS PDF Editor.
Suchen nach 200 von uns erstellten Programmen:

[<<< Zurück, zur Übersichtsseite]

Lizenz bestellen (Rechnung) für 39,99 EUR

  

DXF Schachtelung 1.0

(~1148 Kb) 39,99 EUR PAD-Datei: dxfschachtelung.xml
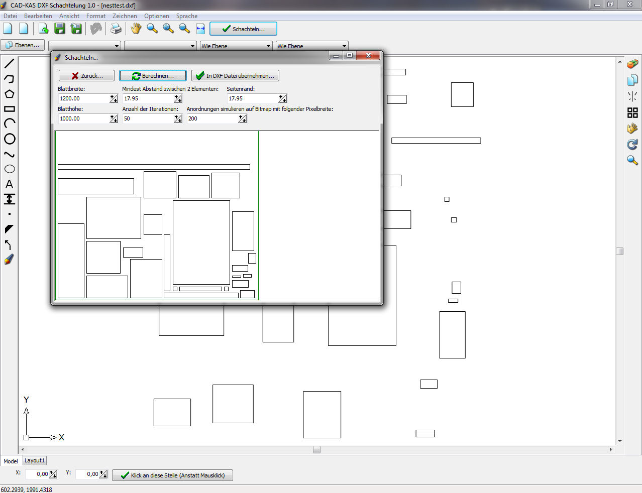
Das Programm öffnet DXF Dateien und ordnet die Elemente möglichst platzsparend an. Es wird also ein Nesting bzw. eine Schachtelung der Elemente durchgeführt. Dies ist nützlich, um Material zu sparen, wenn die DXF Datei als Vorlage zum Schneiden der Elemente benutzt werden soll.

Im Programm wird nach dem Laden der DXF Datei auf den Button "Schachteln" geklickt. Dort können noch einige Einstellungen verändert werden, wie z.B. die Breite und Höhe des Bereichs in dem die Elemente angeordnet werden sollen und der Mindestabstand der Elemente und die Anzahl der Iterationen.

Bei jeder Iteration probiert das Programm eine mögliche Anordnung aus. Am Ende wählt das Programm die beste der ausprobierten Anordnungen aus.

Durch Klick auf den Button "Berechnen" wird die beste Anordnung berechnet. Dann können entweder die Parameter nochmals verändert werden und eine neue Berechnung durchgeführt werden oder die Anordnung kann per Mausklick in die DXF Datei übernommen werden. Die DXF Datei kann dann abgespeichert werden.

Das Programm benötigt zusammhängende Polylines für jedes Objekt

Die Elemente müssen entsprechend zusammenhängend sein, also Polylinien anstatt einzelner Linien für ein zusammenhängendes Element.

Unter dem Button "Linien zusammenfügen..." gibt es zwei Funktionen, die versuchen einzelne Linien oder nicht verbundene Polylinien zusammenzufügen. Dabei wird eine Quell-DXF Datei und eine Ziel-DXF Datei ausgewählt und das Programm fügt die Linien zusammen und speichert das Ergebnis als neue DXF Datei. Diese DXF Datei kann dann im Hauptprogramm über Datei/Öffnen... geladen werden.

Wie wird DXF Schachtelung benutzt

Zunächst über "Datei/Öffnen" die DXF Datei öffnen und dann auf den Button "Schachteln..." klicken. Dort dann die Breite und Höhe einstellen und den Mindestabstand einstellen und auf "Berechnen" klicken. Dann auf "Übernehmen" klicken, um das Ergebnis in die DXF Datei zu übernehmen. Am Schluss über Datei/Speichern unter... das Ergebnis abspeichern.

Demoversion herunterladen

Vollversion für EINMALIG 39,99 EUR kaufen




Copyright (c) 1998-2026 by CAD-KAS Kassler Computersoftware GbR

Datenschutzerklärung | Impressum
PDF bearbeiten mit dem PDF Editor.